中文
中文
概述:
储氢罐需要具备高压储存能力。由于氢气密度较低,为了提高储存效率,储氢罐需要在高压下储存氢气。因此,储氢罐必须能够承受高压,并具有足够的强度和耐压能力。
特点:
1.储存容量大:储氢罐可以储存大量的氢气,因此可以满足各种应用场景的需求。
2.安全性高:储氢罐采用了高强度材料制造,具有良好的抗压、抗冲击性能,能够保证储氢过程的安全性。
3.储存效率高:储氢罐采用了先进的储氢技术,能够有效地提高氢气的储存效率,减少能源浪费。
4.易于运输:储氢罐体积小、重量轻,方便用户进行运输和操作。
5.环保性好:储氢罐作为一种环保的能源储存设备,对环境无害,符合当前可持续发展的要求。
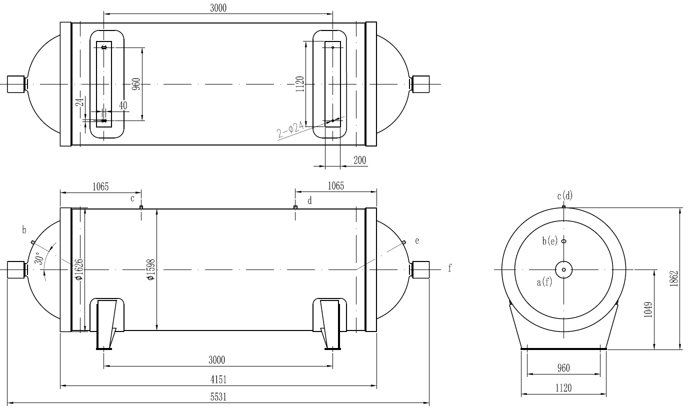
参数:

